99视频在线观看免费I天天操夜夜爱I人人视频网站I怡春院avI91精品蜜桃I色老板在线视频I日韩理论视频I精品电影一区

風機盤管|空調機組|風機|風閥|風口

風機盤管|空調機組|圳澤空調設備有限公司

20年中央空調末端設備專業制造商
做誠信企業、以質量、服務贏得客戶

全國咨詢熱線17588066499

常見問題

常見問題
當前位置:網站首頁>常見問題

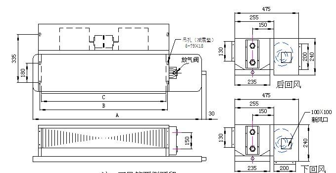
風機盤管尺寸

發布時間:2020-01-04來源:風機盤管|空調機組|圳澤空調設備有限公司

很多人都不知道風機盤管機組、風機盤管機組的空調設備是一種,它可以通過冷卻空氣室內戶外,為了滿足人們的需要一個舒適的溫度,風機盤管機組的類型,常見的有磁帶,水平,墻掛,垂直幾個不同風機盤管也有一定的差異,今天小編為你簡單介紹風機盤管和大小的分類要求,讓每個風機盤管單位有進一步的認識和理解,風機盤管單元新朋友可以小編一起來做一個簡單的研究。
風機盤管尺寸。風機盤管的分類


風機盤管機組又稱風機盤管,是由小風機、電機和盤管(空氣換熱器)組成的空調系統的末端單元之一。冷卻,除濕,或加熱線圈外的空氣,因為它流經冷卻或熱的水在線圈內調整室內空氣參數。它是一種常用的冷熱終端設備。從風機盤管的結構來看,風機盤管可分為:水平和垂直(包括列類型和較低的類型),盒,墻掛,和安裝形式可分為兩種,從水的位置也可以分為出口面對的單位,對回水管左側),正確的類型(出口面對的,右邊的回水管),等等,風扇板光當制冷空氣對流傳熱,并不能使室內舒適度,適合于在較短時間內親身申請,如辦公樓或普通住宅,如增加風機,會增加成本和運行成本,設備管理和維護難度大。
風機盤管尺寸。風機盤管尺寸要求


不同居室的風機盤管單位有不同的要求,如果建造更大,并要求制冷效果,建議選擇一個規模更大的臥式風機盤管機組,由于臥式風機盤管面積較大,可以占用更大的空間,但對于建筑物的高度相對較低,有34個l規格,51l、68l、85l、102l、136l、170l、204l、238l,不同模型對不同尺寸要求,所以價格或多或少會有一些差異。
現在人們的生活質量有很高的要求,居住環境的好壞也是很多人非常關注,確保室內涼爽的夏季,冬季室內溫暖的詞,很多制冷設備是不可或缺的,風機盤管是正確的選擇,風機盤管的應用范圍非常廣泛,無論是在家里或辦公室,可以使用在選擇風機盤管類型和大小,我們可以選擇根據實際需求,通常一個中等大小的風機盤管單位的利用率是比較高的,需要朋友不妨在學習小的方面彌補一下,教你選擇最適合自己的風機盤管的知識。

分享到:0 用手機看
風機盤管尺寸

拍下二維碼,信息隨身看

試試用手機掃一掃,
在你手機上繼續觀看此頁面。